Contacts   

 
Location
1600 €

MILANO - Via Ciro Menotti

Via Ciro Menotti Milano 

Caractéristiques
  • Type Résidentielle
  • Étage terra
  • Ville Milano
  • Disponibilité Disponibile
  • Contrat Location
Détails du Bien
  • Surface (m²) 80
  • Cuisine a vista
  • Chambres 2 + studio
  • Meublé Meublé
  • Parking
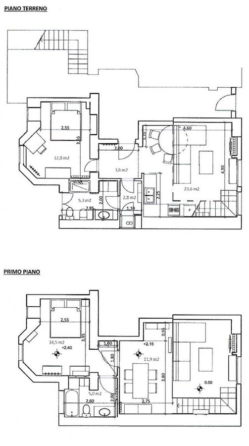
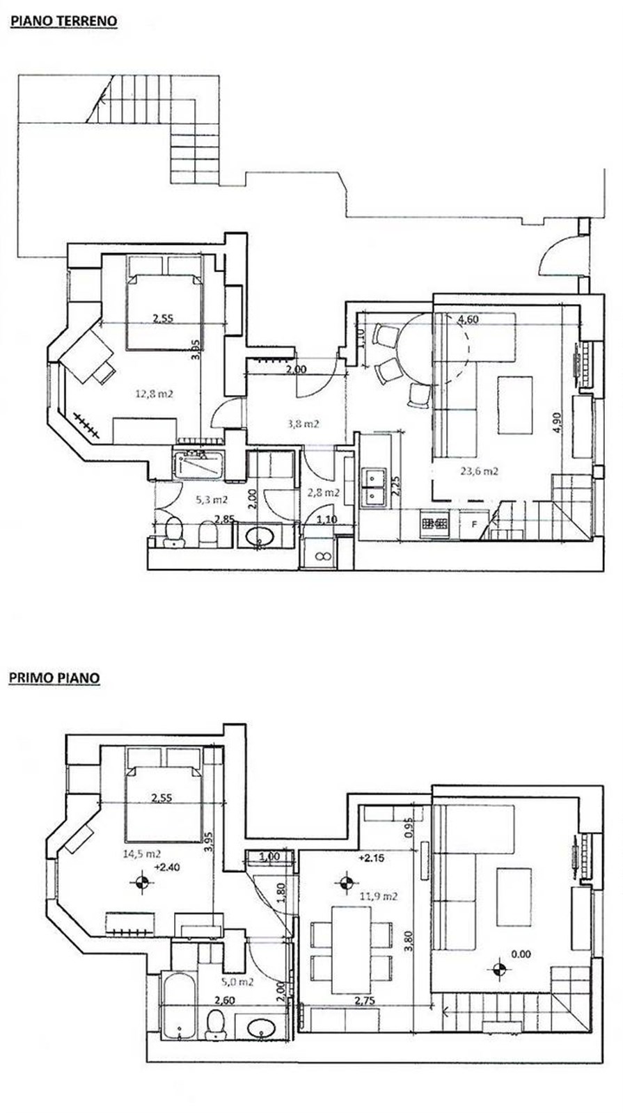
Description

Zona Corso Indipendenza - Via Ciro Menotti (10 minuti a piedi dalla metropolitana linea rossa, fermata Palestro e 5 minuti dal Passante Ferroviario, fermata Dateo). In zona signorile e residenziale, in uno stabile d’epoca, delizioso e silenzioso loft, recentemente ristrutturato. Lo spazio di 80mq si sviluppa su due livelli: il piano terra si compone di un ingresso, soggiorno con cucina a vista, una camera da letto, un bagno e una lavanderia. Una scala porta al secondo livello dove si trova una zona pranzo/area studio, una camera per ospiti e un bagno. Aria condizionata. Pavimenti in parquet. Arredamento: molto ben arredato e curato nei dettagli. Canone mensile € 1.600,00 oltre € 190,00 per le spese condominiali, salvo conguaglio. Riscaldamento autonomo. Disponibile. Classe Energetica F 196,60 kWh/m2a.

Carte de Localisation
*
*
*
*
*
*
*
*
code de contrôle