Contacts   

 
Vente
560000 €

Appartamento in vendita Milano - Via San Vito

Via San Vito Milano 

Caractéristiques
  • Type Résidentielle
  • Étage
  • Ville Milano
  • Disponibilité Nuda proprietà
  • Contrat Vente
Détails du Bien
  • Surface (m²) 118
  • Cuisine semi abitabile
  • Chambres 2
  • Meublé Semi meublé / non meublé
  • Parking
Description

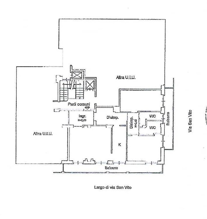
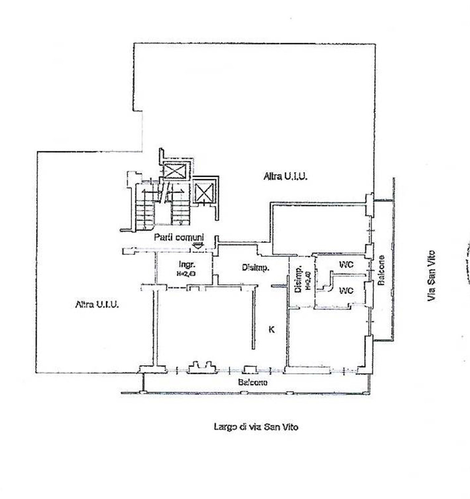
Via San Vito. In posizione centralissima e di grande pregio, ma nel contempo residenziale e riservata, a soli 10 minuti a piedi dal Duomo e da Piazza Sant’Ambrogio, proponiamo in vendita la NUDA PROPRIETA’ di un bell’appartamento posto al 4° piano di uno stabile moderno con ascensore e portineria. 
La superficie abitativa di 118 mq si compone di un ingresso, un accogliente e luminosissimo soggiorno doppio, che, tramite l’ampia balconata, gode di un gradevole affaccio sui giardinetti sottostanti. Adiacente al soggiorno è presente una cucina semi-abitabile.  Nella zona notte troviamo 2 ampie camere da letto, 2 bagni e un’altra lunghissima balconata. L’immobile si presenta in buonissimo stato di conservazione.
L’appartamento è silenziosissimo, con doppia esposizione angolare, completamente inondato dalla luce grazie alla felice posizione sud – ovest.
Aria condizionata.
Riscaldamento centralizzato a pavimento.
Servizio di portineria mezza giornata.
Spese condominiali: € 5.600/anno compreso il riscaldamento. 
Richiesta: € 560.000

Carte de Localisation
*
*
*
*
*
*
*
*
code de contrôle