Contacts   

 
Location
4500 €

Affascinante loft su due livelli in affitto Milano - Via Cesare Ajraghi

Via Cesare Airaghi Milano 

Caractéristiques
  • Type Résidentielle
  • Étage PT e 1°
  • Ville Milano
  • Disponibilité Disponibile in luglio
  • Contrat Location
Détails du Bien
  • Surface (m²) 300
  • Cuisine sì no gas
  • Chambres 4
  • Meublé Meublé
  • Parking doppio
Description

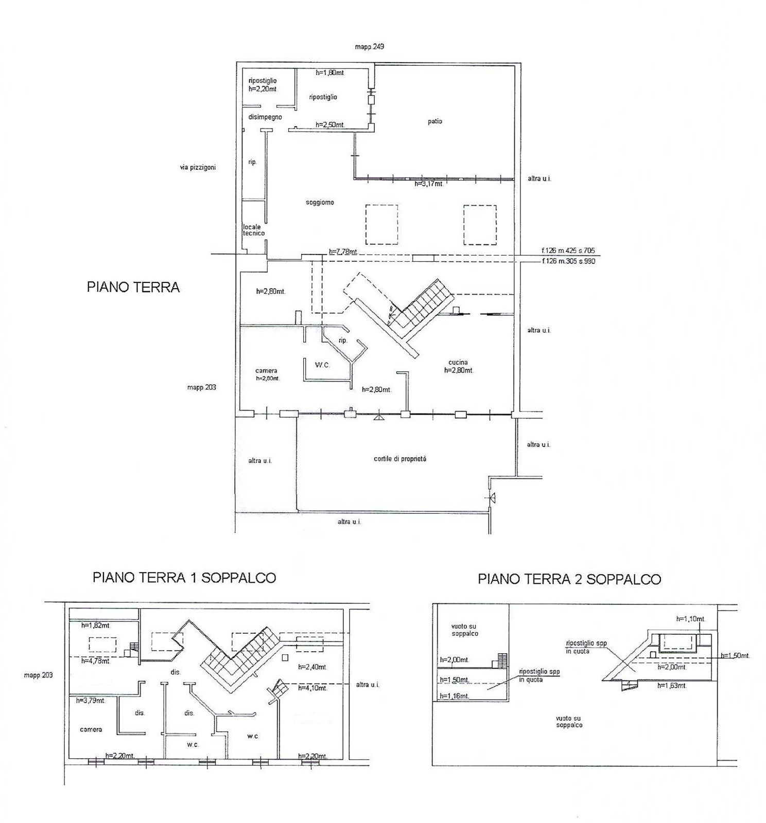
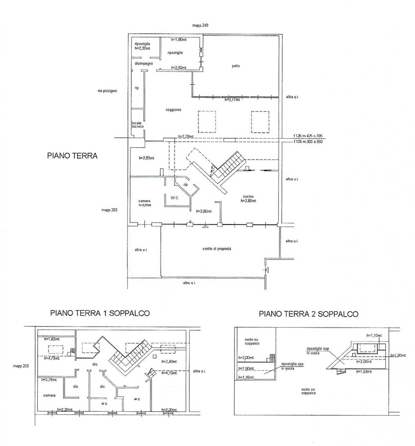
AFFASCINANTE LOFT SU DUE LIVELLI
Contratto 3+2 oppure transitorio. Non disponibile per uso ricettivo.
Ampio loft arredato in affitto, in Via Cesare Ajraghi
A nord ovest della città, nel cuore dell'emergente Certosa District, in un quartiere ancora autentico, dove la "milanese attitude" si mescola alla multietnicità creando un mix eterogeneo di ristoranti, negozi e mercati. Zona servita da tutti i principali servizi di superficie, pista ciclabile che collega al centro città, vicina all'entrata della tangenziale, vicina a vari centri commerciali e a uno dei più grandi parchi della città.
Questo straordinario immobile è unico nel suo genere, situato all'interno di una ex fabbrica completamente riqualificata e ristrutturata, in un’atmosfera tranquilla con servizio di portineria 6 giorni su 7.
La proprietà di 300mq circa si sviluppa su 2 livelli, con spazi ampi e luminosi e arredamento moderno.
Al piano terra una cucina abitabile si apre su un ampio open space che ospita una sala da pranzo e un ampio soggiorno divisi da un camino moderno, una zona tv, una zona studio e un bagno di servizio. Il tutto si affaccia su un incantevole giardino privato perfetto per pranzi e cene all'aperto.
Dal soggiorno si accede anche a una zona ospiti composta da una bagno/lavanderia e una camera con affaccio diretto sul giardino.
Il primo piano ospita 3 camere da letto molto ampie, di cui due soppalcate. 2 bagni eleganti con doccia e vasca. 
Un box doppio completa la proprietà. 
Riscaldamento e aria condizionata autonomi. Parquet in tutta la proprietà. Finestre doppie. Porta blindata.
Canone di locazione mensile € 4.500,00 più spese di condominio € 240,00, salvo conguaglio.
Classe Energetica D 38,94 kWh/m2a.
Disponibile in luglio.

Carte de Localisation
*
*
*
*
*
*
*
*
code de contrôle